Un pequeño apartamento con mucho que decir
Está claro que la falta de espacio no está reñida con el buen gusto.
Cuando el espacio que tenemos es reducido, hay que agudizar el ingenio para no dejar nada atrás. Cada rincón es importante, y todos deben tener su función.
Cuando descubrí este pequeño apartamento en San Petersburgo de sólo 25 metros cuadrados, y vi lo que el equipo de interioristas de Zukkini había conseguido, me quedé con la boca abierta.
Con lo pequeñito que es, han hecho un espacio con carácter y personalidad, tranquilo gracias a los colores neutros y a la vez alegre gracias a las notas de color.
Una buena opción, cuando el espacio es tan reducido es compartir un punto de luz. Cuando no necesitemos la lámpara en el salón, podemos moverla para la habitación con facilidad.
Es importante tener muebles que aporten personalidad, pero sin recargar. La opción de una cajonera es perfecta como mueble de televisión, ya que así ganamos en espacio para guardar cosas.
Me ha llamado la atención lo bien que quedan las sillas TERJE de Ikea, además al poder plegarlas con facilidad, son perfectas si necesitamos más espacio.
La cocina es perfecta. Es pequeña, pero muy apañada. Además el blanco impoluto de los muebles combina genial con el papel de flores y el suelo hidráulico. Es una mezcla perfecta!
Lo del espejo similar al reloj y al espejo del post de ayer es pura casualidad. Pero si ya me gustaba el estilo, ahora me gusta más
El recibidor es pequeñito, pero suficiente.
Además el calzador con el perchero encima, es una opción de 10.
Si se hubiera aprovechado es espacio para hacer un armario cerrado, se hubiera recargado el espacio.
¿Qué os ha parecido?
¿Os gusta el resultado?
Previous articleEl apartamento perfecto: elegante, acogedor y de estilo nórdico

















Alquimia Deco
Me encanta como lo han decorado, además ese suelo hidráulico es precioso y con ese tono tan clarito queda estupendo!!! ¿Hay sitio para una mas?? Feliz martes guapa.
La mesa está servida
Supongo que siempre me termino fijando en los recibidores porque es mi asignatura pendiente… pero me ha gustado mucho la idea de los tres cuadros al lado de la puerta, me la apunto! También me ha gustado mucho la lámpara de la primera imagen, es muy original y choca con el clasicismo de la montura!
Un beso!!
Blanco y de madera
Si claro! Yo creo que bien colocaditos, cabemos todos! 😀
Feliz día!
Blanco y de madera
Los tres cuadros le dan un toque muy alegre si!
Y la lámpara como dije, me parece además de bonita, súper práctica.
Feliz día!
ACOTÍO DECÓ
Me encanta todo el conjunto pero la cocina es de 10!
Anónimo
Excelente!!! Pero el baño?….
Blanco y de madera
Gracias! A mi me llamó la atención que para lo pequeñita que es, no deja indiferente 😀
Blanco y de madera
Pues por desgracia nos hemos quedado con las ganas de verlo.
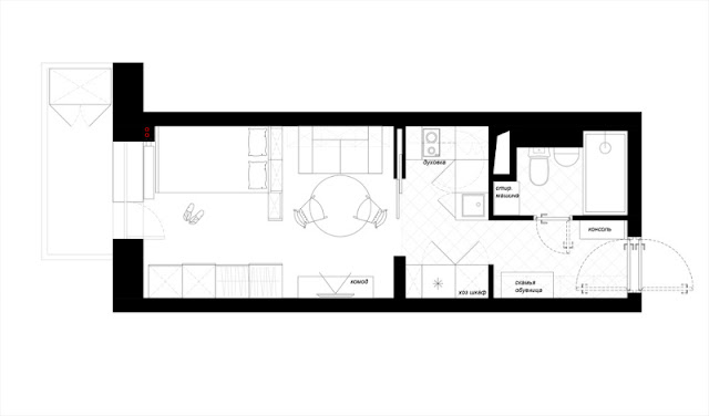
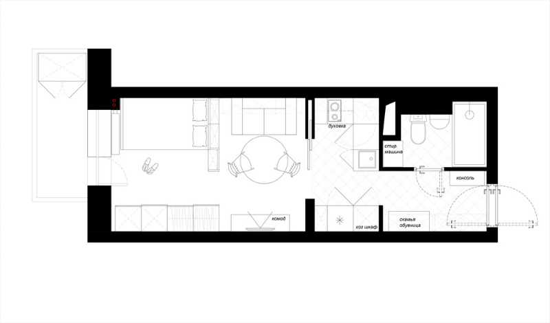
Por el plano sabemos que está en el recibidor, junto a la puerta de la entrada, que además tiene tres piezas y un armarito, pero no nos lo han querido enseñar :/
Gracias por tu comentario! Un besín!