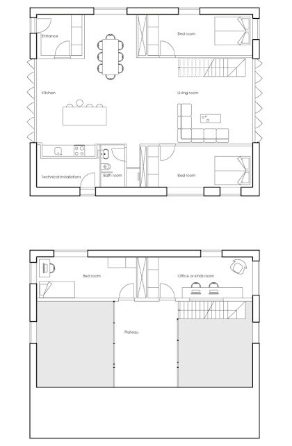
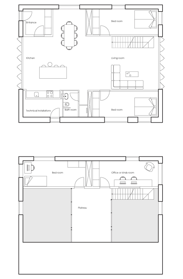
Una casa minimalista hecha con contenedores maritimos
Hoy os quiero enseñar un proyecto experimental de la empresa World Flex Home diseñada por el estudio de arquitectos Arcgency.
Seguro que ya habéis visto casas hechas con contenedores marítimos y conocéis los beneficios de este tipo de construcciones, pero por si acaso os lo cuento.
Es una forma rápida y económica de obtener una casa modular que podemos adaptar a nuestras necesidades. Nos ofrece la posibilidad de apilar varios contenedores, obteniendo diferentes alturas y además, podemos unir dos o más contenedores para conseguir espacios más amplios. Pero la principal ventaja es que son seguros, resistentes y sobre todo con un poder aislante muy alto. Y desde el punto de vista decorativo, me parecen perfectos ya que podemos revestirlos tanto interior como exteriormente para darle el acabado que más nos guste. Por lo demás, es prácticamente como una casa normal, una vez dentro, no notaremos nada diferente (si no queremos).
Una vez hechas las presentaciones, os dejo con la casa que ha formado parte de este «experimento». ¡Espero que os guste!
Que os ha parecido,
¿viviríais en una casa construida con contenedores marítimos?
Previous articleUn apartamento con espíritu blanco y detalles invernales















Aimy's Nordic Corner
¡Qué chula! Ni la conocía ni se me hubiera ocurrido nada igual, ¡me parece estupenda! Feliz lunes:)
Alquimia Deco
Madre mía!!! Me encanta!!, claro que viviría en una casa así, la verdad es que no me importaría para nada del mundo, porque si no nos lo llegas a enseñar, yo nunca hubiese dicho que eran contenedores marítimos. Feliz semana guapa.
Blanco y de madera
Entonces me alegra habérosla enseñado.
Si te ha gustado, te animo a que cotillees las posibilidades de los contenedores. La verdad es que se puede hacer de todo!
Un besín!!
Blanco y de madera
La verdad es que el resultado es muy bueno. Se consiguen casas amplias, eficaces, y lo mejor, por menos presupuesto que el habitual.
Me alegra que te haya gustado!
Un besín!!
Marta Arsenal
Parece que los contenedores representan sólo una excelente oportunidad para el transporte de diversos productos. Pero como se puede ver, también se pueden construir instalaciones interesantes y modernas que cumplan la función de casas residenciales. En http://www.balticon.es encontrará contenedores de cualquier tamaño que se pueden convertir fácilmente a este tipo de viviendas!
Blanco y de madera
Gracias por la información. Un saludo Marta!
Anónimo
Muy interesante. Porfavor cuanto cuesta una casa asi todo incluido pero sin muebles. Con muebles de cocina porsupuesto.
Blanco y de madera
Gracias por tu comentario y bienvenido al blog.
No puedo ayudarte dándote un precio para este tipo de construcciones ya que de una empresa a otra este importe puede variar. Lo que si te recomiendo, es que pidas presupuesto a varias empresas del sector para poder comparar opciones y precios. Puedes hacerlo a través de este enlace de forma muy sencilla, sólo tienes que explicar el proyecto a realizar y se pondrán en contacto contigo (sin coste y por supuesto, sin obligación alguna) Enlace: http://www.habitissimo.es/presupuestos/landing?utm_channel=Affiliate&utm_source=blancoymadera&kw=mejorar-tu-casa
Espero haberte ayudado, de todas formas si tienes alguna otra duda, puedes contactar conmigo a través del email blancoydemadera@gmail.com
Un saludo!
Oscar Borges
Hermosa , la verdad me encanto estoy pensando en crear una parecida pero por los terrenos que aquí en mi país hay dudo que entre ,quisiera saber medidas , la separación entre contenedores ..
Blanco y de madera
Gracias Oscar, me alegra que te haya gustado la publicación.
Siento no poder ayudarte con tus dudas ya que nosotros no somos quienes comercializamos estas viviendas.
Te recomiendo que busques empresas de confianza en tu país que puedan darte esta información. Otra opción es contar con un arquitecto especializado en este tipo de viviendas, seguro que encuentras alguno.
Espero haberte ayudado y verte de nuevo por el blog.
Un saludo!